Rif: ROCCA CANAVESE
ROCCA CANAVESE
TORINO
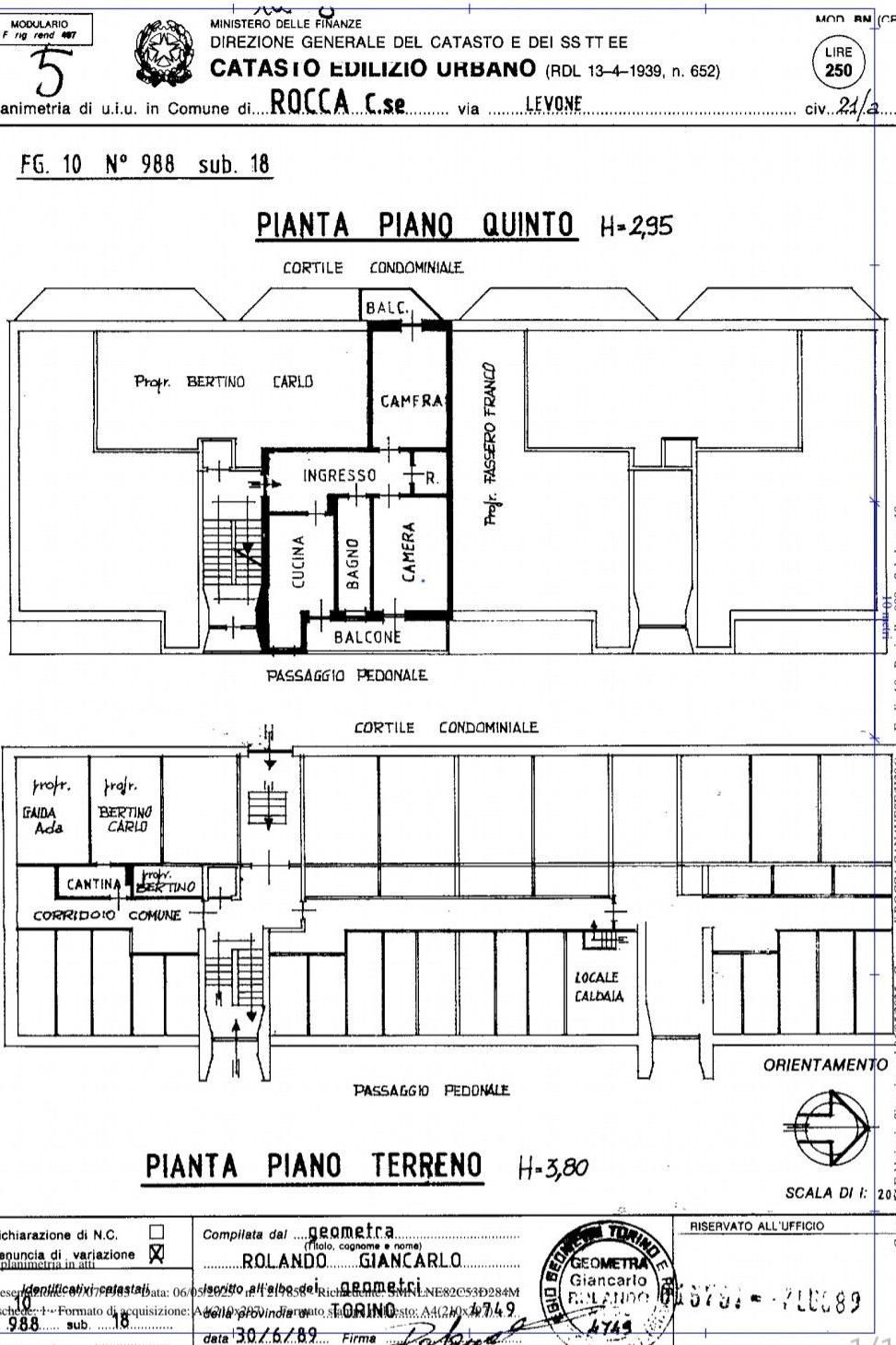
In stabile anni 60 proponiamo al 5 piano con ascensore un appartamento cosi composto: ingresso, due camere, tinello con cucinino , bagno, ripostiglio e cantina.
Doppia esposizione. Volendo totalmente arredato.
Lo stabile si presenta in ottime condizioni e l'immobile internamente dispone di un'ottima metratura.
Libero subito.
AGENZIA IL MATTONE IMMOBILIARE
VIA MONFALCONE 60 TORINO
011.3721005-327.1407278
Doppia esposizione. Volendo totalmente arredato.
Lo stabile si presenta in ottime condizioni e l'immobile internamente dispone di un'ottima metratura.
Libero subito.
AGENZIA IL MATTONE IMMOBILIARE
VIA MONFALCONE 60 TORINO
011.3721005-327.1407278
Consistenze
| Descrizione | Superficie | Sup. comm. |
|---|---|---|
| Principali | ||
| Immobile - 5° piano | 83 Mq | 83 Mqc |
| Balcone - 5° piano | 4 Mq | 1 Mqc |
| Balcone - 5° piano | 3 Mq | 1 Mqc |
| Cantina - piano interrato | 4 Mq | 1 Mqc |
| Totale | 86 Mqc | |






